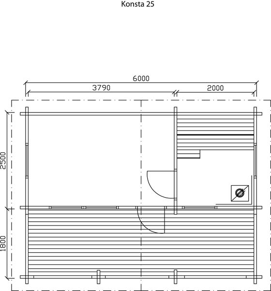
Konsta 25
Tuotetiedot
70
600 x 250
Lisätiedot
Valmissaunat ja aitat toimitetaan valmiiksi koottuina, 70x145 mm. höylähirrestä.
Saunat varustettu kiukaalla, tyyppihyväksytyllä hormilla, 22 litran hormisäiliöllä ja kiuaskivillä.
Toimitussisältö
Ovissa ja ikkunoissa lämpölasit. Vakiomalleissa katemateriaalina musta rullahuopa.
Palahuopa lisähintaan.
Konsta 25 toimitetaan aina isolla terassilla ja terassin katon jatkeella (180 cm.)
Yläpohjan eristys 50mm. Alapohja eristämätön.



